『名』|大運正中心,龍外50米『校』|150米直線大運中心站『王』|一站樞紐,四線交匯『座』|百萬商業(yè)旁,購物無憂『全』|距大運體育場
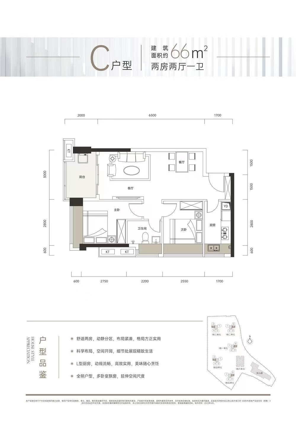
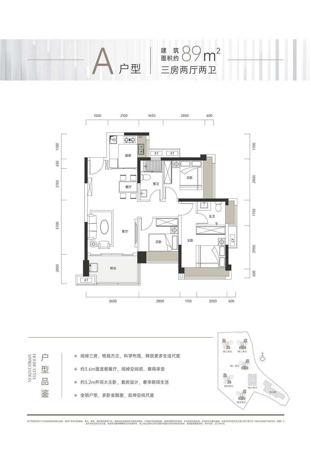
房屋戶型:1室 、2室 、3室 、
住宅類型:精裝修
區(qū)域:深圳市龍崗區(qū)外國語學校旁
最新開盤:2023-04-15
立即咨詢
24小時咨詢熱線:13267179661
『名』|大運正中心,龍外50米
『校』|150米直線大運中心站
『王』|一站樞紐,四線交匯
『座』|百萬商業(yè)旁,購物無憂
『全』|距大運體育場館約280米
『能』|房價倒掛約1-2萬/㎡
『配』|大品牌精裝,準現樓
『套』|74-143㎡2-4房全南向


